
CUISINE
CENTRALE
à
Chatou (78)
Pour une relation optimisée avec
l'environnement urbain, nous avons choisi
de scinder en deux volumes
cet édifice industriel.
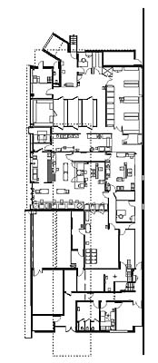
Le rez-de-chaussée est dédié à la fabrication
des repas et aux livraisons, tandis que
l'étage
est réservé à l'administration.
Le choix ainsi que
le surdimensionnement volontaire
de cette "boite" posée - dont le volume intérieur
n'est que partiellement utilisé -
offrent plusieurs avantages.
Ils favorisent la perception
des différentes fonctions de l'édifice,
permettent le camouflage des appendices industriels inesthétiques
- tuyauteries, évacuations -
et
traduisent enfin la volonté de rompre
avec la monotonie traditionnelle
des bâtiments industriels.





